Fire Resistant Ceiling Hatches

Fire Rated Access Panel 2 Hour Access Solutions Fire Rated Access Panels Kimberley

Fire Rated Access Panel 2 Hour Access Solutions Fire Rated Access Panels Kimberley

Fire Protection Of Access Panels Hatches Promat Asia Pacific

Fire Protection Of Access Panels Hatches Promat Asia Pacific

Roof Hatch Rhtei Fire Rated 120 Minutes

Roof Hatch Rhtei Fire Rated 120 Minutes

Fireproof Inspection Hatch Envirograf

Fireproof Inspection Hatch Envirograf

Fire Protection Of Access Panels Hatches Promat Asia Pacific

Fire Protection Of Access Panels Hatches Promat Asia Pacific

Ceiling Hatch Fw 5050 Up Acudor Products Ltd Square Stainless Steel Fire Rated

Ceiling Hatch Fw 5050 Up Acudor Products Ltd Square Stainless Steel Fire Rated

Ceiling Hatch Fw 5050 Up Acudor Products Ltd Square Stainless Steel Fire Rated

This means our 1 hour fire rated access panels are also.

Fire resistant ceiling hatches.

Fully tested 1 hour fire rated access panels. A ul fire resistant rated ceiling also provides a known specified fire resistance period. It features a one inch flange for easy installation on any surface and constructed with 16 gauge cold rolled steel frame and 20 gauge galvanneal steel door together with two inches of mineral wool. Fire rated loft hatches are typically required under building regulations for all houses with 3 or more storeys and blocks of flats.

When making a product choice always refer to standards. Fully tested 2 hour fire rated access panels. An underwriters laboratories ul fire resistant rated ceiling system provides separation between the elements of the building services i e. Ceildoor s 1 hour fire rated access panels meet uk building regulations and have been tested by exova warringtonapt for thermal resistance to bs en iso 10077 1 2006 and by exova warringtonfire for fire resistance to bs 476.

Ceildoor s 2 hour fire rated and shaftwall access panels have been externally tested by exova warringtonapt for thermal resistance to bs en iso 10077 1 2006 part j and by exova warringtonfire for fire resistance to bs476. Fyreguard are the manufactures of an extensive range of fire rated access hatches for the installation into fire rated ceilings walls shafts and floors. Access doors and panels offers you ceiling and attic access panels fire rated upward opening fire rated downward opening with or without drywall flange. Mifab babcock davis elmdor karp and cendrex.

With drop down or push up fire rated and insulated loft hatch doors and panels we have the loft access door for you. Loft hatches provide you with an entry point into your loft. Fire rated access panels are suitable for the use in plaster masonry or drywall allowing easy access to electrical plumbing and mechanical systems of the building. Most access panels are designed for privacy and easy access to areas behind walls or ceilings while a fire rated access panel is specifically manufactured with compliance to fire safety standards.

Our range of fire rated loft hatches includes standard size hinged and push up loft traps designed to fit between 600mm joist centres. 1987 part j for 120 minutes integrity performance. Installing a hinged loft hatch is more practical as the door drops down and is hinged at one end. For your commercial or residential construction project installing the right fire rated door will be very useful in case of fire outbreaks.

You can choose from our doors from a variety of brands. It needs to be noted that fire hatches and fire doors have different fire resistance levels frl and are tested to different australian standards. It is for this reason that for safety and durability fire rated access door ceiling application requires an insulated product. Fire rated access panels hatches cannot be installed in ceilings and floors unless specifically tested and approved.

They come in different sizes and different fire resistance levels. 1987 part j to provide 60 minutes integrity performance.

Wall Access Hatch At Sb Sw Exitile Square Stainless Steel Fire Rated

Wall Access Hatch At Sb Sw Exitile Square Stainless Steel Fire Rated

Fire Rated Loft Hatches Up To 1 Hour Price Match Fast Uk Delivery

Fire Rated Loft Hatches Up To 1 Hour Price Match Fast Uk Delivery

Roof Hatch Rht7014 With Scissor Stair Ei 60 Fire Rated 60 Minutes

Roof Hatch Rht7014 With Scissor Stair Ei 60 Fire Rated 60 Minutes

Fire Rated Loft Hatch Part B And Part L Compliant In 5 Sizes Slab Insulation Concealed Hinges Simplistic Design

Fire Rated Loft Hatch Part B And Part L Compliant In 5 Sizes Slab Insulation Concealed Hinges Simplistic Design

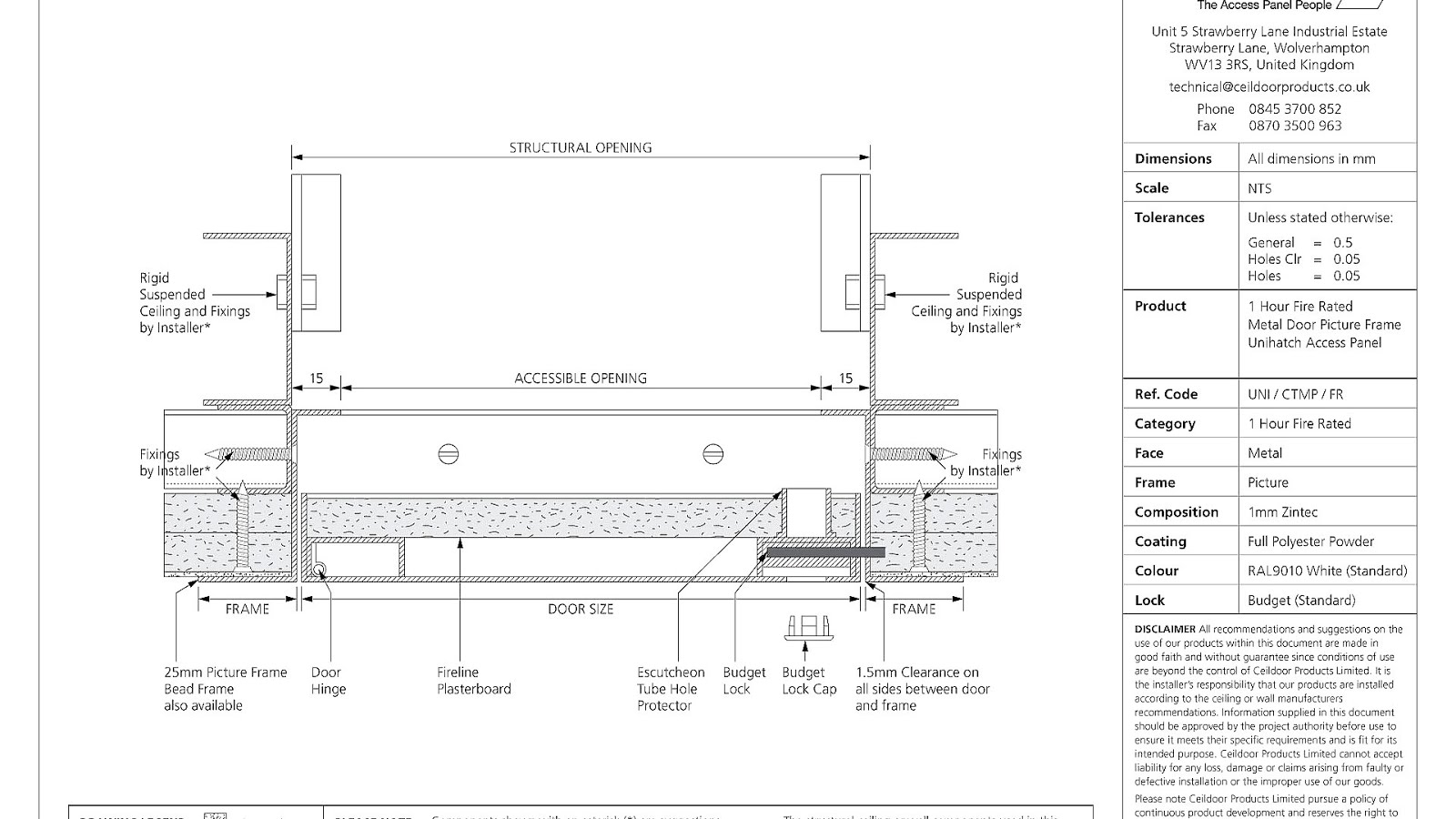
Unihatch Access Hatches Potter Interior Systems

Unihatch Access Hatches Potter Interior Systems

Floor Door Fire Rated Cover Flush

Floor Door Fire Rated Cover Flush

Ceiling Hatch Aluprotect F30 Ei30 Dakota Group Square Aluminum Fire Rated

Ceiling Hatch Aluprotect F30 Ei30 Dakota Group Square Aluminum Fire Rated

Fire Rated Access Panels

Fire Rated Access Panels

Fire Choices Fire Rated Hatches

Fire Choices Fire Rated Hatches

Fire Rated Access Panels Australian Commercial Doors

Fire Rated Access Panels Australian Commercial Doors

Fire Rated Attic Ceiling Access Doors Hatch Panel For Drywall Or Walls Buy Fire Rated Attic Access Panel Fire Rated Attic Access Door Fire Rated Attic Access Hatch Product On Alibaba Com

Fire Rated Attic Ceiling Access Doors Hatch Panel For Drywall Or Walls Buy Fire Rated Attic Access Panel Fire Rated Attic Access Door Fire Rated Attic Access Hatch Product On Alibaba Com

Gl280f Fire Resistant Drop Down Loft Access Door White 562 X 726mm In 2020 Easy Cleaning Doors Fire

Gl280f Fire Resistant Drop Down Loft Access Door White 562 X 726mm In 2020 Easy Cleaning Doors Fire

Fire Rated Access Panels

Fire Rated Access Panels

Save Time And Money With The Flip Fix Fire Rated Access Hatch From Trade Access Panels Ltd By Trade Access Panels Medium

Save Time And Money With The Flip Fix Fire Rated Access Hatch From Trade Access Panels Ltd By Trade Access Panels Medium

Fire Rated Access Panels

Fire Rated Access Panels

Ceiling Access Panel Access Panels Ceiling Guest Bathrooms

Ceiling Access Panel Access Panels Ceiling Guest Bathrooms

Gallery Of Roof Hatch Fire Rated Rhtei 1

Gallery Of Roof Hatch Fire Rated Rhtei 1

Panther Access Panels Rondo

Panther Access Panels Rondo

Pin On Heaven

Pin On Heaven

Wall Door B Fire Rated 120 Minutes

Wall Door B Fire Rated 120 Minutes

1 Hr Fire Rated Loft Hatch Made To Measure Fps

1 Hr Fire Rated Loft Hatch Made To Measure Fps

Image Result For Ceiling Hinges Loft Ladder Loft Aluminium Ladder

Image Result For Ceiling Hinges Loft Ladder Loft Aluminium Ladder

Fire Rated Steel Roof Hatch Access Hatch Door Ap7210 China Roof Hatch Ceiling Hatch Made In China Com

Fire Rated Steel Roof Hatch Access Hatch Door Ap7210 China Roof Hatch Ceiling Hatch Made In China Com

China Fire Rated Access Door For Wall And Ceiling With Key Ap7110 China Access Panel Access Hatch

China Fire Rated Access Door For Wall And Ceiling With Key Ap7110 China Access Panel Access Hatch

Source : pinterest.com